Хоппер-ковш
Что это даёт
Быстрая штукатурка
- Устройство данного типа обладает целым рядом преимуществ, которые теряются при выполнении штукатурных работ вручную. Прежде всего, это скорость, с которой поверхность можно покрыть раствором (производительность увеличивается в 2-3 раза), не теряя при этом качества покрытия – создаётся струйный напор, который способствует адгезии.
- При такой отделке есть возможность применения различных примесей и фибров и при этом какие-либо специальные требования отсутствуют – весь процесс осуществляется в обычном режиме. Хоппер-ковш можно использовать для нанесения раствора на стену и потолок внутри помещения и на улице.
- Агрегат легко моется, особенно если сама ёмкость сделана из оцинкованной или нержавеющей стали. Пневматика просто продувается рабочей струёй воздуха, а затем все детали высушиваются.
Устройство
Готовый хоппер
Для изготовления такого пневматического механизма необходимо понять принцип его работы в целом и тогда легче будет сделать и собрать воедино штукатурный пневмоковш своими руками.
А суть действия здесь достаточно проста – струя воздуха из компрессора через шланг попадает в ковш, наполненный раствором. На противоположной стенке ёмкости есть отверстия, через которые, под напором воздуха, и выталкивается смесь.
Передняя стенка ковша делается с наклоном – это позволяет эффективнее вычёрпывать смесь с ёмкости, где она готовится заранее. Примечательно, что если сделать на верхней части хоппера небольшую крышку, то есть, закрыть только третью или даже четвёртую часть отверстия со стороны подачи воздуха, то при нанесении раствора на потолок он не будет разливаться.
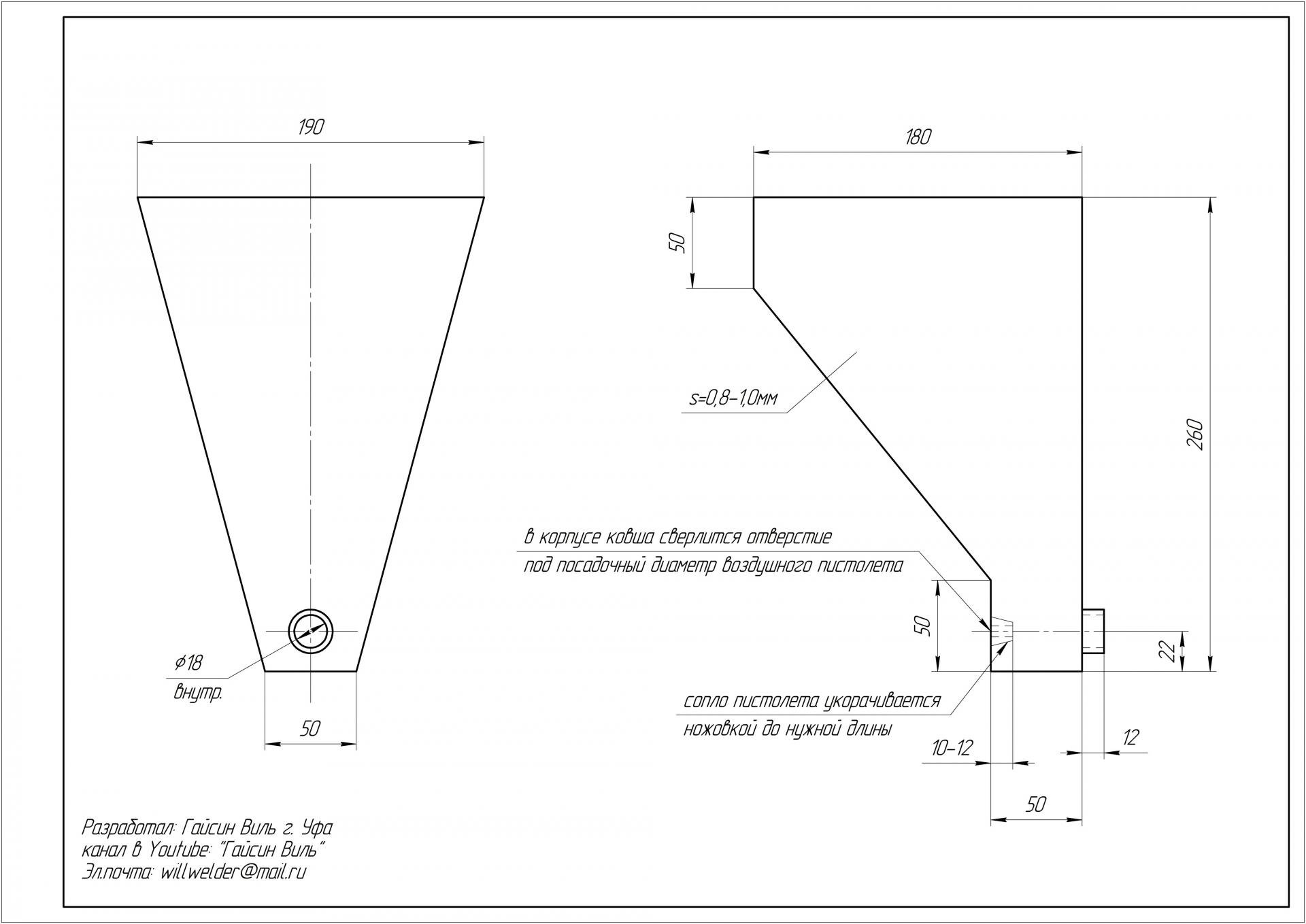
Можно использовать этот чертеж пневмоковша для штукатурки
Обратите внимание на чертёж или эскиз (называйте, как угодно) хоппера, расположенный выше, а конкретнее, на его нижнюю часть, где расположено сопло и выходное отверстие. Так, на пневматический шланг вам понадобится насадка, которая будет служить соплом, при этом её оптимальный внутренний диаметр лучше всего подобрать на 4-5 мм, а для выходного отверстия – 10-12 мм
Сопло отрегулируйте таким образом, чтобы его расстояние до передней стенки, то есть, до выходного отверстия, не превышало 15-20 мм, хотя нижнюю часть ковша можно сделать гораздо больше, например, 50x50 мм или даже 70x70 мм.
В этом случае, какая-либо строгая инструкция неуместна, так как чаще всего такие изделия конструируются из подручных материалов – что нашлось на хозяйстве – из того и делают. Но здесь важен сам принцип – раствор должен опускаться вниз в узкое пространство, где и будет выталкиваться воздухом.
Если, например, увеличить расстояние от сопла до передней стенки, скажем, до 100 мм, то почти вся пневматическая мощность будет растрачиваться на сопротивление раствора и вы просто будете наблюдать пузыри вверху ёмкости и очень слабый отток смеси сквозь предназначенный для этого выход.
В качестве клапана с ручкой использован пневматический пистолет
Если вы посмотрите на верхнее фото, то увидите, что там в качестве клапана, а по совместительству и ручки, использован пневматический строительный пистолет.
Вы видите, что он по бокам крепится с помощью двух хомутов, которые зафиксированы на краях бункера, а также самого сопла – то есть, получается, что он имеет три точки опоры. Если хомуты можно приварить или взять на заклёпки, то передняя часть должна фиксироваться при помощи резьбового соединения.
В данном случае ковш сделан частично из оцинкованной листовой стали (передняя часть), а частично из дюралюминия, швы скреплены алюминиевыми заклёпками (можно сделать всё из стали, а швы заварить, но агрегат получится тяжелее). Ручка в данном случае приклёпана с левой стороны, то есть, для правшей, но её с таким же успехом можно закрепить справа, если вы левша.
Штукатурная станция своими руками
Штукатурка
Набираем раствор
Для штукатурки пневмоковшом вам понадобится более густой раствор, нежели обычно – попробуйте сделать из него снежок – форма должна зафиксироваться. Подключаете пистолет к компрессору через шланг, при этом вам понадобится давление в 2-3 атмосферы (если больше, то будет раздувать набрызг, а если меньше – не будет струи).
При работе выдерживайте расстояние от стены до выходного отверстия порядка 15-20 см, а толщину слоя регулируйте по потребности.
Хоппер-ковш
Что это даёт
Быстрая штукатурка
- Устройство данного типа обладает целым рядом преимуществ, которые теряются при выполнении штукатурных работ вручную. Прежде всего, это скорость, с которой поверхность можно покрыть раствором (производительность увеличивается в 2-3 раза), не теряя при этом качества покрытия – создаётся струйный напор, который способствует адгезии.
- При такой отделке есть возможность применения различных примесей и фибров и при этом какие-либо специальные требования отсутствуют – весь процесс осуществляется в обычном режиме. Хоппер-ковш можно использовать для нанесения раствора на стену и потолок внутри помещения и на улице.
- Агрегат легко моется, особенно если сама ёмкость сделана из оцинкованной или нержавеющей стали. Пневматика просто продувается рабочей струёй воздуха, а затем все детали высушиваются.
Устройство
Готовый хоппер
Для изготовления такого пневматического механизма необходимо понять принцип его работы в целом и тогда легче будет сделать и собрать воедино штукатурный пневмоковш своими руками.
А суть действия здесь достаточно проста – струя воздуха из компрессора через шланг попадает в ковш, наполненный раствором. На противоположной стенке ёмкости есть отверстия, через которые, под напором воздуха, и выталкивается смесь.
Передняя стенка ковша делается с наклоном – это позволяет эффективнее вычёрпывать смесь с ёмкости, где она готовится заранее. Примечательно, что если сделать на верхней части хоппера небольшую крышку, то есть, закрыть только третью или даже четвёртую часть отверстия со стороны подачи воздуха, то при нанесении раствора на потолок он не будет разливаться.
Можно использовать этот чертеж пневмоковша для штукатурки
Обратите внимание на чертёж или эскиз (называйте, как угодно) хоппера, расположенный выше, а конкретнее, на его нижнюю часть, где расположено сопло и выходное отверстие. Так, на пневматический шланг вам понадобится насадка, которая будет служить соплом, при этом её оптимальный внутренний диаметр лучше всего подобрать на 4-5 мм, а для выходного отверстия – 10-12 мм
Сопло отрегулируйте таким образом, чтобы его расстояние до передней стенки, то есть, до выходного отверстия, не превышало 15-20 мм, хотя нижнюю часть ковша можно сделать гораздо больше, например, 50x50 мм или даже 70x70 мм
Сопло отрегулируйте таким образом, чтобы его расстояние до передней стенки, то есть, до выходного отверстия, не превышало 15-20 мм, хотя нижнюю часть ковша можно сделать гораздо больше, например, 50x50 мм или даже 70x70 мм.
В этом случае, какая-либо строгая инструкция неуместна, так как чаще всего такие изделия конструируются из подручных материалов – что нашлось на хозяйстве – из того и делают. Но здесь важен сам принцип – раствор должен опускаться вниз в узкое пространство, где и будет выталкиваться воздухом.
Если, например, увеличить расстояние от сопла до передней стенки, скажем, до 100 мм, то почти вся пневматическая мощность будет растрачиваться на сопротивление раствора и вы просто будете наблюдать пузыри вверху ёмкости и очень слабый отток смеси сквозь предназначенный для этого выход.
В качестве клапана с ручкой использован пневматический пистолет
Если вы посмотрите на верхнее фото, то увидите, что там в качестве клапана, а по совместительству и ручки, использован пневматический строительный пистолет.
Вы видите, что он по бокам крепится с помощью двух хомутов, которые зафиксированы на краях бункера, а также самого сопла – то есть, получается, что он имеет три точки опоры. Если хомуты можно приварить или взять на заклёпки, то передняя часть должна фиксироваться при помощи резьбового соединения.
В данном случае ковш сделан частично из оцинкованной листовой стали (передняя часть), а частично из дюралюминия, швы скреплены алюминиевыми заклёпками (можно сделать всё из стали, а швы заварить, но агрегат получится тяжелее). Ручка в данном случае приклёпана с левой стороны, то есть, для правшей, но её с таким же успехом можно закрепить справа, если вы левша.
Штукатурная станция своими руками
Штукатурка
Набираем раствор
Для штукатурки пневмоковшом вам понадобится более густой раствор, нежели обычно – попробуйте сделать из него снежок – форма должна зафиксироваться. Подключаете пистолет к компрессору через шланг, при этом вам понадобится давление в 2-3 атмосферы (если больше, то будет раздувать набрызг, а если меньше – не будет струи).
При работе выдерживайте расстояние от стены до выходного отверстия порядка 15-20 см, а толщину слоя регулируйте по потребности.
Популярные модели
Zitrek SN-01
Это бюджетная модель пневматического ковша от чешского бренда Zitrek, предназначенная для стеновых работ. Объем бункера для смеси – 3, 5 литра. Имеются 4 сопла для выхода смеси, каждое диаметром 20 мм. Такой диаметр позволяет обеспечить покрытие стен толщиной от 5 мм. Из положительных сторон пользователи отмечают быстроту нанесения и достаточно удобную длинную рукоятку. Но у Zitrek SN-01 имеется ряд существенных недостатков (что компенсируется его доступной ценой). В первую очередь, это материал – ковш выполнен не из нержавейки, а из обычного металла с напылением.
Zitrek SN-02
Пневмоковш производства той же фирмы Zitrek, но предназначенный для потолочных работ.
Соответствует стандартным для хоппер ковша техническим характеристикам:
- Количество сопел – 4, диаметром по 20 мм.
- Требуемое рабочее давление – 4-6 атмосфер.
- Диаметр шланга – 16-18 мм.
- Объем чаши – 3,5 л.
- Производительность компрессора – 350-400 литров в минуту.
- Максимальная фракция смеси – 6 мм.
В отличие от своего «родственника», этот ковш, судя по отзывам, действительно выполнен из нержавеющей стали. С его помощью можно добиться равномерного распределения строительных смесей с минимальным слоем 5 мм. Рекомендуемое рабочее расстояние – 5-10 см.
ПРОФМАШ КШ-4
Штукатурный ковш для отделочных работ на вертикальных поверхностях. Объем емкости для строительных смесей – 3,6 литра, требуемое рабочее давление – 6-8 атмосфер. Для распыления имеются 4 сопла диаметром 18 мм. Заявленная производителем скорость нанесения – 60 квадратных метров в час. Хоппер ковш относится к бюджетной категории, и приобрел популярность благодаря удобству использования и своей доступности. К сожалению, у устройства есть ряд недостатков, которые отмечают владельцы в отзывах.
HYVST 07-OMG-II
Ковш также относится к бюджетному сегменту и соответствует следующим характеристикам:
- Объем чаши – 3,5 литра.
- Производительность – 40 кг сухой смеси в час.
- Требуемая производительность компрессора – 350 литров в минуту.
- Максимальная длина шланга – 15 метров.
Пневмоковш изготовлен из нержавеющей стали, что существенно повышает его прочность. Сменных насадок в комплекте не имеется, устройство предназначено для нанесения штукатурки только на вертикальные поверхности. Владельцы отмечают эргономичность и надежность этой штукатурной лопаты, а также его хорошую производительность.
TeaM К350
Стеновой хоппер ковш от итальянской компании TeaM. Оборудован контейнером для строительных смесей объемом 3,5 литра. Имеются 4 выходные сопла стандартного диаметра – 20 мм. Выполнен из нержавеющей стали.
Прочие характеристики ковша:
- Требуемое рабочее давление – 4-6 атм.
- Диаметр шланга – 16-18 мм.
- Расстояние при нанесении материала – 10-15 см.
- Общий вес – 2,16 кг.
Таким образом, этот хоппер представляет собой небольшое компактное устройство, которое заслужило популярность среди покупателей благодаря высокой производительности.
Pegas 2721
Хоппер-ковш производства фирмы Pegas Pneumatic, которая специализируется на пневматическом оборудовании для строительства и ремонта.
Предназначен для обработки вертикальных поверхностей и обладает следующими техническими характеристиками:
- Количество сопел – 4 по 20 мм.
- Минимальная производительность компрессора – 320 литров в минуту.
- Требуемое давление – 6 атмосфер.
- Минимальная толщина слоя покрытия на выходе – 2,5 см.
- Рабочее расстояние от поверхности – 5-25 см.
HOPPER-PRO U-3
Это более профессиональный инструмент, в комплекте с которым идут сменные плашки с соплами, расположенными под разным углом. Также инструмент укомплектован семью сменными форсунками для регулировки уровня подачи воздуха. Имеется возможность работать с одной или тремя выпускными дюзами. Поэтому данный хоппер ковш можно по праву назвать полноценным универсальным отделочным инструментам.
Заявленная производительность – 45 квадратных метров за час работы. Это минимальная производительность при работе с одной выходной дюзой, поэтому пневмоковш не уступает другим моделям по скорости.
Таким образом, хоппер ковш действительно незаменимое устройство для ремонтных и отделочных работ. Правильно выбранный и качественный пневмоковш способен существенно облегчить работу, равномерно и прочно распределить покрытие по поверхности, и сэкономить время мастера.
Краскопульты для побелки: что это такое, виды, критерии выбора, рейтинг и обзор лучших моделей, их плюсы и минусы, советы и рекомендации по подбору прибора
Как сделать своими руками: чертежи и размеры
У хоппер ковша довольно простой принцип работы, поэтому народные умельцы самостоятельно мастерят пневматические приспособления для штукатурки стен. Это имеет смысл для разового небольшого объема работ, или когда надо сделать пневмоковш для имеющегося маленького компрессора.
Потратиться придется на продувочный пневмопистолет и мелкие комплектующие, бак можно изготовить из того, что есть дома: нержавейки, жести или пластиковой канистры.
Рассмотрим несколько вариантов самодельной штукатурной лопаты.
Из жести
Делаем бак. На листе картона расчерчиваем по размерам, затем развертку переносим на металлический лист и вырезаем. Скреплять края можно сваркой, заклепками или болтиками. Под сопла коронкой просверливаются отверстия диаметром 18 мм.
Изготавливаем воздушный коллектор с соплами. Понадобятся: одна крестовина с внутренней резьбой 1/2 дюйма, два уголка 1/2? (внутренняя-наружная резьба), три переходника с наружной резьбой 1/2?, три штуцера 1/2? с внутренним отверстие 6 мм. Все части продаются в обычном магазине сантехники. Как собирать коллектор показано ниже.
- Рукоятку делаем из трубкой длиной 500 мм, приворачиваем к коллектору.
- Ну другой конец трубки устанавливаем запорный пневматический клапан (гашетку). Использовать можно клапан от огнетушителя. У него резьба М10, потребуется переходник. Для картушного ковша с небольшой мощностью можно использовать продувочный пневмопистолет. Но и его присоединять к рукоятке придется через переходничек.
Далее уже соединяем самодельный аппарат со шлангом.
Получается что-то на подобие этого:
Штукатурный ковшик своими руками
Самодельный хоппер ковш
Как сделать своими руками, показано на видео.
Из канистры
Изготовить простейший пулевизатор для штукатурки можно из пластиковой канистры, например, из-под масла. Разберем пошагово.
- У пустой канистры вырезать дно.
- В крышке и горловине просверлить отверстие d 10 мм.
- Ручку канистры разрезать вдоль. Отверстия внутри ручки закрыть (например,пенопластом), чтобы в ней не оставался раствор.
- В прорезь ручки вставить продувочный пистолет. Его сопло должно быть на расстоянии 2 см от отверстия в крышке.
- Закрепить пистолет в канистре, примотав проволокой и изолентой.
Результат на фото:
Пневмоковш из канистры
Почему именно ковш
Кельма одноручная
Вы наверняка чаще сталкивались с применением кельмы для осуществления процесса наложения штукатурки. Это вполне справедливо в том случае, если поверхность не отличается большой площадью. Вполне удобно набирать небольшое количество раствора, аккуратно наносить его и сразу разравнивать, особенно это касается быстросохнущих гипсовых растворов.
Но, если перед вами предстоит обширный объём работ, то значительно быстрее будет накидать необходимое количество штукатурки при помощи большей ёмкости и разровнять цементный слой длинным правилом по установленным заранее маякам. Тут-то и приходит на помощь ковшик для штукатурки, способный упростить и ускорить процесс выравнивания стен.
Самостоятельное изготовление штукатурного ковша
При необходимости хоппер-ковш можно сделать самостоятельно, если в наличии имеются все материалы и расходники.
Чертежи
Основной элемент ковша — емкость, и именно ее изготовлению нужно уделить пристальное внимание. При выборе размера емкости и создании чертежа следует учесть такие требования:
- наличие сдвигаемой или откидной крышки со стороны подведения шланга, а также отверстия под пневматический клапан;
- диаметр входного отверстия — более 1,2–1,5 мм и менее 5 мм (если отверстие слишком маленькое, оно будет забиваться, а большое вызовет чрезмерное падение давления);
- длина раструба выходного сопла — до 20–22 см (слишком длинный раструб негативно влияет на точность работы), угол конической части — 70–90 градусов.
Чертеж ковша для штукатурки
Емкость следует делать из тонколистовой стали или алюминия. Если взять жесть, то деталь быстро деформируется. Алюминиевый ковш будет на порядок легче железного, но соединять отдельные участки придется саморезами, а стыки укреплять резиновыми уплотнителями.
Стальную емкость можно сварить, что намного надежнее. Оптимальная толщина листа равна 0,8–1 мм.
Пневмоклапан для емкости можно взять из устройства для подкачивания автомобильных шин, либо приспособить для этой цели шаровой кран. Последний применяется в крайнем случае, поскольку мгновенное перекрытие подачи штукатурки станет невозможным, и ее потери будут неизбежными.
Что касается компрессора, то его покупка не является обязательной, если в наличии есть автомобильный агрегат с давлением сжатого воздуха до 60–70 атмосфер. Когда давление слишком маленькое, смесь будет подаваться неравномерно, и качество отделки снизится.
Хорошо, если расход рабочей смеси будет от 500 литров/минуту. Объем ресивера в компрессоре должен составлять 50 литров и больше. При разработке чертежа также нужно учесть, что общий вес хоппер-ковша обязан составить менее 5–7 кг, иначе длительная работа с ним станет невозможной.
Инструменты и материалы
Кроме перечисленных расходных материалов и устройств, для изготовления хоппер-ковша потребуются:
- металлическая труба для ручки;
- форсунка;
- шайбы с диаметром 10–12 мм по числу сопел;
- болгарка;
- ножницы по металлу;
- электродрель с набором сверл;
- маркер;
- острый нож;
- калька;
- линейка металлическая;
- сварочный аппарат или саморезы, клепки (в зависимости от выбранного варианта скрепления деталей).
Этапы изготовления ковша
Вначале переносят линии чертежа на металл при помощи кальки и маркера, либо процарапывают контуры ножом. Выкройку емкости вырезают ножницами по металлу или болгаркой. При необходимости можно поделить ее на несколько элементов, а потом сварить их. Заготовку сгибают по линиям нижней плоскости, к ней приваривают переднюю и заднюю часть. Если скрепление производится при помощи саморезов, оставляют припуски по 1 см.
Далее действуют таким образом:
- Присоединяют верхнюю ручку ковша.
- В нижней части высверливают дырки под сопла, закрепляют их стальными шайбами.
- Делают отверстие напротив распылителей под пульверизатор.
- Внутри емкости устанавливают форсунку для крепления компрессора.
- Вырезают из стали две усиливающие пластины, присоединяют их к боковым стенкам ковша.
Для пробного испытания в ковш набирают раствор, подключают его к компрессору и наносят штукатурку на стену, экспериментируя с разным давлением. При желании, сделать такое устройство можно за пару часов. Хоппер-ковш серьезно сократит время на оштукатуривание стен и снизит трудоемкость процесса, поэтому при выполнении большого объема работ стоит воспользоваться этим устройством.
Как изготовить аппарат для нанесения штукатурки
Распространённые модели изготовлены из огнетушителя и хоппер-ковша.
Штукатурная станция своими руками, сделанная на основе огнетушителя, получила наиболее широкую известность.
Огнетушитель имеет ручку, рычаг, форсунку, что делает его фаворитом среди приспособлений для самодельных устройств механического оштукатуривания.
Пошаговое описание.
- Фабричный огнетушитель (дно) обрезается и получается ёмкость в несколько литров. Через отверстие будет поступать рабочий раствор. Объём должен быть не менее 4 литров. Если он больше, устройство становится тяжёлым. Если меньше, надо часто наполнять ёмкость раствором.
- В него вставляется трубка с форсункой диаметром 4 мм. Диаметр отверстия огнетушителя равен 10 мм, расстояние от него до форсунки 20 мм. Форсунки могут быть разного размера: от 3 до 5 мм. Для крепления трубки подходит смола, уровень которой находится ниже форсунки.
- Компрессор подсоединяется к огнетушителю при помощи трубки, через неё подаётся сжатый воздух. Трубка врезана в стенку ёмкости и находится напротив отверстия выхода готовой смеси.
- Мощность подачи раствора регулируется увеличением (уменьшением) диаметра форсунки, давлением воздуха, расстоянием между соплом и форсункой.
Среднее давление примерно 2 атмосферы. Если оно больше, производится финишная отделка, заполняются все поры и трещины покрытия.
Производительность аппарата: 4 литра смеси наносятся за 1 минуту.
Хоппер-ковш самодельного изготовления
Применяется при ремонте всего здания.
Преимущества в работе:
- высокая скорость распыления, что создаёт условия для лучшей адгезии смеси;
- применение различных примесей;
- использование снаружи и внутри помещения.
Перед сборкой необходимо понять принцип его работы. Последовательность действий:
- Компрессор подаёт струю воздуха через шланг в ковш со смесью.
- Другая сторона ковша имеет отверстия d 12 мм для выхода раствора.
- Передняя стенка немного наклонена для удобства взятия смеси из общей ёмкости.
- На шланг надевается сопло d 5 мм. Расстояние от него до отверстия выхода 20 мм.
- Верхняя часть ковша шире, чем нижняя. Он фиксирован двумя хомутами.
- Устройство подключено к компрессору. Давление 2-3 атмосферы. Расстояние до стены 18-20 см.
При самостоятельной сборке машины применяются аппараты и запчасти от других изделий.
Изготовление хоппер-ковша из металла
Последовательность действий:
- Делается чертёж на листе оцинковки.
- Вырезается с помощью болгарки или ножниц. При использовании заклёпок оставляется припуск 15 мм.
- Детали сгибаются, соединяются сваркой, клёпкой.
- Прикрепляется ручка.
- Просверливаются отверстия для сопел (на передней стенке) и для пульверизатора (на задней).
- Форсунка крепится с внутренней стороны ёмкости.
- Крепятся дополнительно рёбра жёсткости.
- Заполняется раствором, сверху прикрывается крышкой, производится распыление.
Увеличивают скорость работы дополнительные сопла и отверстия выхода. Шланг нужен один.
Чертежи, из чего можно сделать насос
Насос обеспечивает подачу раствора от бетономешалки до места укладки. Она идёт по горизонтали и на высоту.
По типу подачи различают:
- Поршневый. Смесь выталкивают поршни, двигающиеся в цилиндрах. Использование: подача на большое расстояние, высоту. Сложная конструкция.
- Роторный. Основан на вращении ротора. Простой механизм. Нельзя использовать для бетона с фракциями более 10 мм.
- Шнековый. Работает по принципу мясорубки.
Для самостоятельной сборки подходит роторный насос. Он наиболее прост и долговечен. Сделать штукатурный насос своими руками может тот, кто имеет технические знания и опыт работы с подобными агрегатами.
Материалы и инструменты:
- лист бумаги, линейка, карандаш для создания чертежа;
- шуруповёрт, ключи, болты, отвёртки;
- лист металла, толщина которого 5 мм;
- труба (для корпуса);
- пожарный рукав;
- электрический мотор;
- профили из металла;
- медный провод, изоляционная лента;
- ролики прорезиненные, подшипники;
- аппарат для сварки.
Схема чертежа роторного насоса.
Станок для изготовления шлакоблоков своими руками
Как сделать мини-насос для бетона своими руками
Изготовление хоппер-ковша для штукатурки своими руками
Что такое картушный пистолет и как им наносят штукатурку и шпаклевку
